基正聚源国际

在售

      基正聚源国际现房销售
        基正聚源国际写字楼、商铺在售
          基正聚源国际128-600平米商铺在售
            基正聚源国际写字楼均价14000元/平
              基正聚源国际推出6折特价商铺
            • 价    格:14000元/平
            • 物业类型:|商业|写字楼|
            • 楼盘区域:郑东新区
            • 主力户型:
            • 开 发 商:河南超达置业有限公司
            • 物 业 费:办公:6.8元/㎡,商业15元/㎡
            • 容 积 率:3.97
            • 绿 化 率:20.20%
            • 开盘时间:2012年12月26日西座已开盘
            • 交房时间:预计2014年10月交房
            • 项目地址:郑东新区郑东新区金水东路与聚源路向南500米
            • 售楼地址:郑东新区黄河东路与商鼎路交叉口向北50米路东
            • 交通状况:114、122、135、B16路等多条公交线路直速到达

            0371—65890000

            基正聚源国际现房销售

            2016-06-02 | 基正聚源国际现房销售。目前写字楼均价14000元/平,房源面积为170-400平米;另有商铺在售,均价13000-35000元/平,房源面积为128-600平米,具体一铺一价。 基正聚源国际半层或者整层购买可享88折优惠。...[详情]

            • 项目介绍
            • 项目配套
            • 交通状态
            • 建材装修
            • 相关信息

            基正聚源国际项目是基正投资控股有限公司投资,河南超达置业有限公司开发的一个集写字楼和商业为一体的综合体。

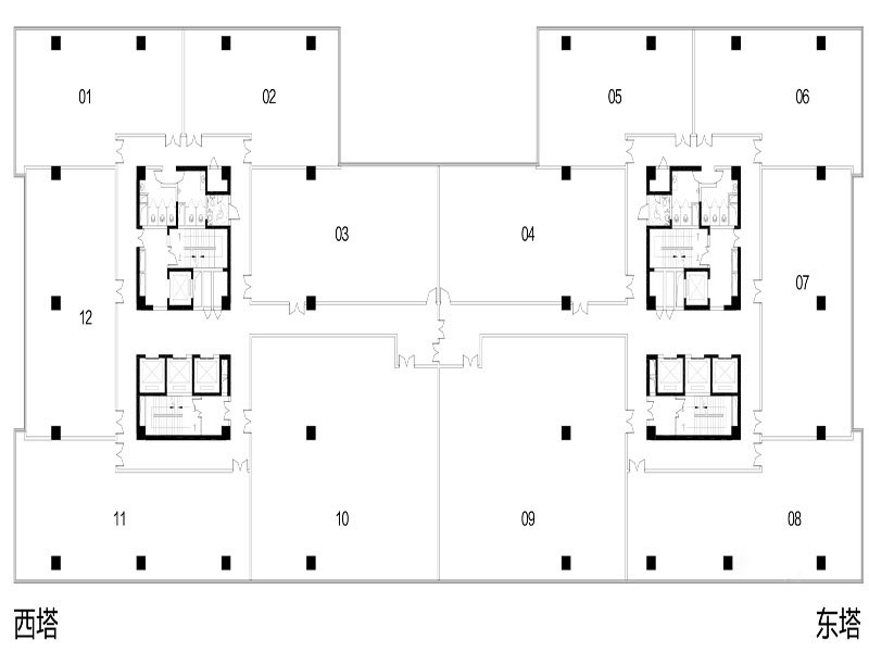
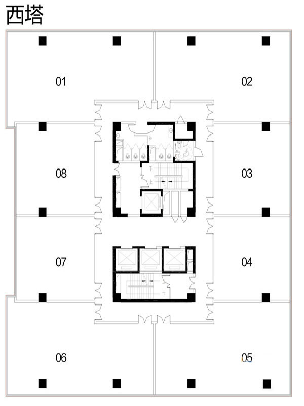
            基正聚源国际项目位于郑东新区聚源路和宏图街交叉口东南角,占地面积10000㎡,总建筑面积55579㎡,整个项目地上塔楼13层,裙楼2层,地下2层。业态规划,2层约6757㎡商业空间,13层约32972㎡办公空间。

            大郑东“黄金商务十字聚点”:

            聚合郑东新区“郑汴物流产业带、CBD中央商务区、高铁商务区、CGD行政区”最前沿城市资源,迅速实现与各经济区间跨界沟通。

            凯旋门地标,国际商务美学:

            力邀加拿大宝佳(ACBI)中国首席建筑师刘震宇先生全情投入,采用商务感极强的竖向线条,缔造独特“凯旋门”造型,寓意“入驻企业,征战千里,凯旋而归”。

            700平米博物馆大堂,融入多处精美水景:

            挑高四层达12米,纯天然大理石铺贴,别具一格的设置多处精美水景,原生态氛围浓厚。内部设有接待区、贵宾等候区以及多处水景景观区。

            100—3000㎡开放式自由组合空间:

            可依据办公需求随意分割装修,整栋大楼核心筒采用居中设计,得房率超过70%,标准层高3.8米。

            英法联合双服务体制:

            联袂世界五大行之一戴德梁行全城顾问和法国雅高集团五星级酒店服务理念,首创打造写字楼物业双服务体制,为入驻业主提供最专业、最国际的写字楼物业服务。

            双光纤网络地板:

            网络、电话合一的双光纤入户综合布线系统,用户均能根据所需选择合适的带宽,以提高工作效率,节约成本。

            会所籍功能设施:

            布拉格广场上的董事会

            打造1500㎡布拉格广场,高档石材铺装地面铺,精美绝伦的广场景观照明设计,映衬精致水景,营造白天、黑夜风格迥异的绝美享受。

            空中生态花园中的高峰会谈

            二层商业裙房部分楼顶设置空中生态花园,绿意葱笼,繁花点缀,更有微型精致水景呈现,为办公生活增添几分生动情致。

            定制化会所籍服务,写字楼社交平台

            西塔设置董事会馆,供企业董事长级高管参加非正式会议使用;东西双塔设置休闲书吧两个,入住企业高管均可根据需要成为基正集团白金会员,尊享旗下诸多礼宾级服务待遇。

            银行金融:中国银行、中国建设银行、中国工商银行、交通银行、中信银行、上海浦东发展银行、广东发展银行等环绕,世界金融峰汇赫然成形;

            酒店餐饮:锦江国际饭店、迪欧咖啡、永和伯爵酒店、悦莱时尚酒店、南国一品、西湖春天、香水皇宫假日酒店、富侨商务会所等酒店餐饮配套遍布周围,为商务宴请提供最高规格服务;

            商业中心:嘉茂购物广场、居然之家、红星美凯龙、丹尼斯、东建材、金海马家居城、东易力天家居馆、建材大世界等专业化市场密集分布,商务氛围浓厚,商业群聚效应下的南郑东繁华腹地;

            政府机构:省政府、河南省交通运输厅、河南省出入境管理中心、河南省劳动教育管理居、河南出版集团、河南省国土资源厅等政务、商务核心,首脑智慧源地。

            轨道交通描述:地铁1号线、3号线、4号线、5号线

            公共交通:金水路、商都路、黄河路、中州大道城市繁华主干道环绕,地铁1号线、3号线和4号线三面围合,114、122、135、B16路等多条公交线路直速到达,距离CBD、高铁站、新客站、市区商业圈、机场高速3分钟路程,以便捷交通共赢速度时代!

            结构:框剪结构,核心筒居中

            外墙:双层中空LOW-E玻璃幕墙

            大堂及公共部分:大堂及公共部分精装修

            供电:市政供电

            网络通讯:CA(通讯传输智能化);会议中心,能够实现多方电视电话会议,匹配企业快速扩张发展的需要

            消防:FA(消防智能化):楼宇火灾报警系统、自动喷淋系统,紧急广播、排烟求援系统、消防对讲电话系统等,能够有效消除消防隐患,保障业主财产安全

            供水:市政供水

            空调:VRV中央空调,分户控制,24小时恒温办公

            其他:OA(办公智能化):引入网络、电话合一的双光纤入户综合布线系统,使每个用户均能按自己的需要,选择合适的宽带,以提高工作效率,节约成本;

            BA(楼宇自动化):领先的VRV中央空调系统、高速智能化电梯系统等领先设备,为业主提供星级享受的办公环境

            销售阶段:期房

            容积率:3.97

            绿化率:20.20%

            开盘时间:2012-09已开盘

            入住时间:预计2014年10月交房

            物业现状:2012年底封顶

            占地面积:10000平方米

            建筑面积:55000平方米

            是否可分割:是

            开间面积:100-3000平方米

            开工时间:2012-03-05

            竣工时间:2013-12-01

            物业管理附加信息:办公:6.8元/㎡,商业15元/㎡

            开发商:河南超达置业有限公司

            投资商:基正投资控股有限公司

            物业管理公司:戴德梁行

            代理商:Together|通和

            建筑设计单位:加拿大宝佳国际建筑师有限公司

            东西双塔,地下两层车库,地上15层,1-2层商业,其余为写字楼

            楼层状况:电梯补充说明:10部国际一线品牌高速电梯

            停车位描述:79:1,地下双层车库,地上20个,地下400个

            地上停车位数量:20个

            地下停车位数量:400个